Biệt thự 1 tầng tân cổ điển được nhiều chủ đầu tư quan tâm bởi lối kiến trúc kết hợp hài hòa giữa phong cách cổ điển và hiện đại. Mặc dù, phong cách này ra đời vào giữa thế kỷ 18, nhưng đến nay vẫn được đông đảo chủ đầu tư lựa chọn.
Lấy cảm hứng thiết kế từ kiến trúc đế chế Hy Lạp và La Mã cổ đại. Các chi tiết không quá lộng lẫy nhưng vẫn đảm bảo độ sang trọng và đẳng cấp cho chủ đầu tư.Kiến trúc tân cổ điển tuân thủ nghiêm ngặt nguyên tắc đối xứng trong thiết kế. Ngoài ra, các chi tiết và mảng tường được phân chia, chạm khắc theo một tỷ lệ vàng nhất định để đảm bảo tổng quan biệt thự 1 tầng tân cổ điển hài hòa về không gian.
1.Thông tin chung của mẫu biệt thự hiện đại 1 tầng 3 phòng ngủ BT112
| Mã công trình | BT108 | Số tầng: | 1 tầng |
| Chủ đầu tư | GĐ. anh Giang | Địa chỉ: | Thái Nguyên |
| Mặt tiền | 12m | Chiều sâu | 30m |
| Loại hình | Biệt Thự 1 Tầng | Biệt thự tân cổ điển | Biệt Thự Vườn |
| Thời gian khởi công | Tháng 4/2019 | Thời gian hoàn thiện | Tháng 9/2020 |
| Chi tiết công năng của các tầng: | |
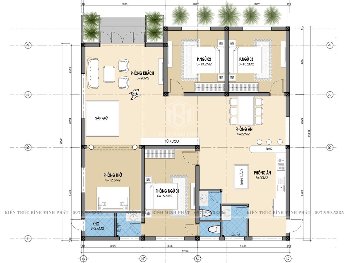
| Tầng 1 | Sảnh chính + sảnh phụ + 1 phòng khách + 1 phòng thờ + 1 khu vực bếp & phòng ăn + 3phòng ngủ + 2WC + sân gia công |
| Chi tiết về diện tích sử dụng | |
| Tầng 1: | 220m2 + 33m2 sảnh |
2. Phối Cảnh Biệt Thự 1 Tầng tân cổ điển BT112
Mẫu thiết kế dinh thự 1 tầng phong cách cổ điển là công trình Bình Minh Phát gửi tới anh Giang - Chủ đầu tư ở Phú Lương - Thái Nguyên. Đặc thù công việc được thăm quan nhiều nơi, cũng như chiêm ngưỡng nhiều công trình , đẹp ở khắp nơi trên thế giới nên chủ đầu tư yêu thích vẻ đẹp kiến trúc ở trời Tây. Đặc biệt phong cách tân cổ điển và kết cấu 1 tầng là phong cách yêu thích của cô. Với không gian 1 tầng với hình ảnh ngoại thất được thiết kế với lối kiến trúc vô cùng hoàn mỹ, tinh tế. Công năng sử dụng đầy đủ tiện nghi với những trang thiết bị nội thất mới nhất đẹp nhất và được nhập từ Châu Âu. Bình Minh Phát hoàn toàn chinh phục được cô và gia đình từ cái nhìn đầu tiên. Sau đây Bình Minh Phát xin gửi tặng cho chủ đầu tư yêu thích vẻ đẹp sang trọng, xa hoa đẳng cấp trong từng chi tiết ngoại thất và không gian nội thất sang trọng, ấm cúng. Đó chính là mẫu dinh thự 1 tầng phong cách cổ điển mời quý vị cùng xem.

Phối Cảnh Góc Mẫu Căn Biệt Thự 1 Tầng BT112
Sự đầu tư đắt giá ở công trình không chỉ là kiến trúc mà cảnh quan, không gian xanh là một điểm nhấn vô cùng ấn tượng cho thấy sự đầu tư tâm huyết của gia chủ cho công trình biệt thự tân cổ điển 1 tầng 3 phòng ngủ này, thiên nhiên cây cỏ như lớp đệm bao quanh ngôi nhà, các bụi cây, bồn cây bonsai đắt giá đặt ngay lan can khu vực bậc tam cấp dẫn lối lên sảnh chính hay các leo uốn theo các cột trụ, thành xà ngang giúp ngôi nhà thêm sự bình yên tách xa sự đông đúc, ồn ào nơi phố thị.

Mặt Tiền Căn Biệt Thự 1 Tầng 3 Phòng Ngủ BT112
Sở hữu ưu thế diện tích đất mặt phố các KTS Bình Minh Phát đã tận dụng để tạo nên một không gian sống hiện đại, sang trọng đúng nghĩa. Biệt thự tân cổ điển nhưng thiết kế kiểu mở với những ô cửa kích thước lớn để đón nhiều ánh sáng, gió tươi mới. Ngôi biệt thự nhà tân cổ điển mang hơi hướng đặc trưng của phong cách kiến trúc châu Âu, các cột trụ vuông vắn trắc khỏe, hình khối rõ ràng, chi tiết sắc nét.Đặc biệt, hệ thống cửa kính được các KTS Bình Minh Phát sử dụng khá nhiều tại công trình, hầu như các diện tường đều được thay thế bằng vách kính cường lực có màu nâu trà cao cấp Là sự kết hợp của các tấm kính trắng qua quá trình sơn màu được hình thành bằng cách phun một lớp sơn màu trà lên bề mặt kính và tiến hành làm để qua giai đoạn phun sơn tĩnh điện để màu sắc của sơn được bền đẹp chất lượng kính cao nhất. Mặt kính này còn giúp giảm sáng, giảm thiểu độ chói, đặc biệt khi ánh sáng xuyên qua tấm kính độ chói cũng như nhiệt của tia UV giảm đi đáng kể, nên chỉ một ít ánh sáng có thể len qua kính, kính dễ dàng vệ sinh, giá thành hợp lý mà ở trong nhà ta vẫn có thể ngắm cảnh như đang ở không gian ngoài trời.

Tổng Quan Căn Biệt Thự 1 Tầng 3 Phòng Ngủ tân cổ điển BT112
Hồ sơ thiết kế nhà mái nhật 1 tầng tân cổ điển
Hồ sơ kiến trúc
-
Hồ sơ kiến trúc của mẫu thiết kế nhà đẹp 1 tầng mái nhật bao gồm bản vẽ mặt bằng, mặt cắt, mặt đứng, phối cảnh
-
Bản vẽ chi tiết kiến trúc như chi tiết cửa, chi tiết cầu thang, chi tiết sàn, chi tiết vệ sinh, cổng hàng rào.
Hồ sơ kết cấu
-
Bản vẽ biệt thự mái nhật 1 tầng tân cổ điển gồm mặt bằng móng, chi tiết móng, chi tiết kết cấu cột, mặt bằng định vị cột.
-
Bản vẽ mặt bằng kết cấu sàn tầng, mặt bằng định vị lanh tô, chi tiết kết cấu lanh tô ( dầm tường, gạch cốt thép, bê tông cốt thép, gỗ hoặc thép định hình, thống kê cốt thép)
Hồ sơ phần điện
-
Hồ sơ phần điện của mẫu nhà 1 tầng tân cổ điển bao gồm: thiết kế chiếu sáng, ổ cắm, internet, điện thoại, truyền hình cáp, thống kê vật tư.
Hồ sơ phần nước
-
Hồ sơ phần nước của căn nhà1 tầng mái nhật tân cổ điển bao gồm các thiết kế hệ thống cấp nước, hệ thống thoát nước, thống kê vật tư.
Nếu muốn sở hữu không gian sống thượng lưu đẳng cấp mà ai cũng phải ngưỡng mộ như mẫu nhà mái nhật 1 tầng tân cổ điển BT112. Liên hệ với Kiến Trúc Bình Minh Phát qua số hotline hoặc văn phòng công ty để được tư vấn chi tiết.
Biệt thự tân cổ điển 1 tầng kiến trúc khối kiến trúc, thiết kế công năng đảm bảo có sự kết nối hoàn hảo, không một chi tiết dư thừa, thể hiện rõ gu thẩm mỹ tinh tế của gia chủ. Với hình khối đơn giản, mang đường nét tinh gọn của phong cách nhà ở châu Âu . Đội ngũ KTS đã tính toán kỹ lưỡng và phân chia đầy đủ các phòng chức năng, đảm bảo phục vụ hiệu quả nhu cầu cuộc sống, đáp ứng được việc mở rộng không gian xanh và tối ưu diện tích sinh hoạt.
Mọi Thông tin của mẫu biệt thự 1 tầng hiện đại BT112 quý khách vui lòng liên hệ Hotline 0979995335 để được giải đáp chi tiết!
binhminhphat.facebook
Hotline: 0979995335