Mẫu biệt thự 1 tầng 4 phòng ngủ tại Thanh Hóa được thiết kế theo phong cách hiện đại mái Thái, công trình 1 tầng mái Thái có sân vườn rộng rãi - khoáng đạt tạo nên một bầu không khí trong lành bao quanh ngôi nhà. Biệt Thự 1 tầng 4 phòng ngủ không chỉ đáp ứng nhu cầu sử dụng công năng của gia chủ mà còn đáp ứng những thị hiếu của đông đảo các gia đình khác cũng yêu thích các mẫu nhà biệt thự đẹp 1 tầng !
1.Thông tin chung của mẫu biệt thự hiện đại 1 tầng mái thái BT108
|
1.Mã Công Trình |
BT109 |
2.Số Tầng |
1 Tầng |
|
3.Chủ Đầu Tư |
Ông Huấn |
4.Địa Chỉ |
Thanh Hóa |
|
5.Mặt Tiền |
8m |
6.Chiều Sâu |
18m |
|
7.Loại Hình |
|||
|
|
|
|
|
Chi tiết công năng của các tầng: |
|
|
Tầng 1 |
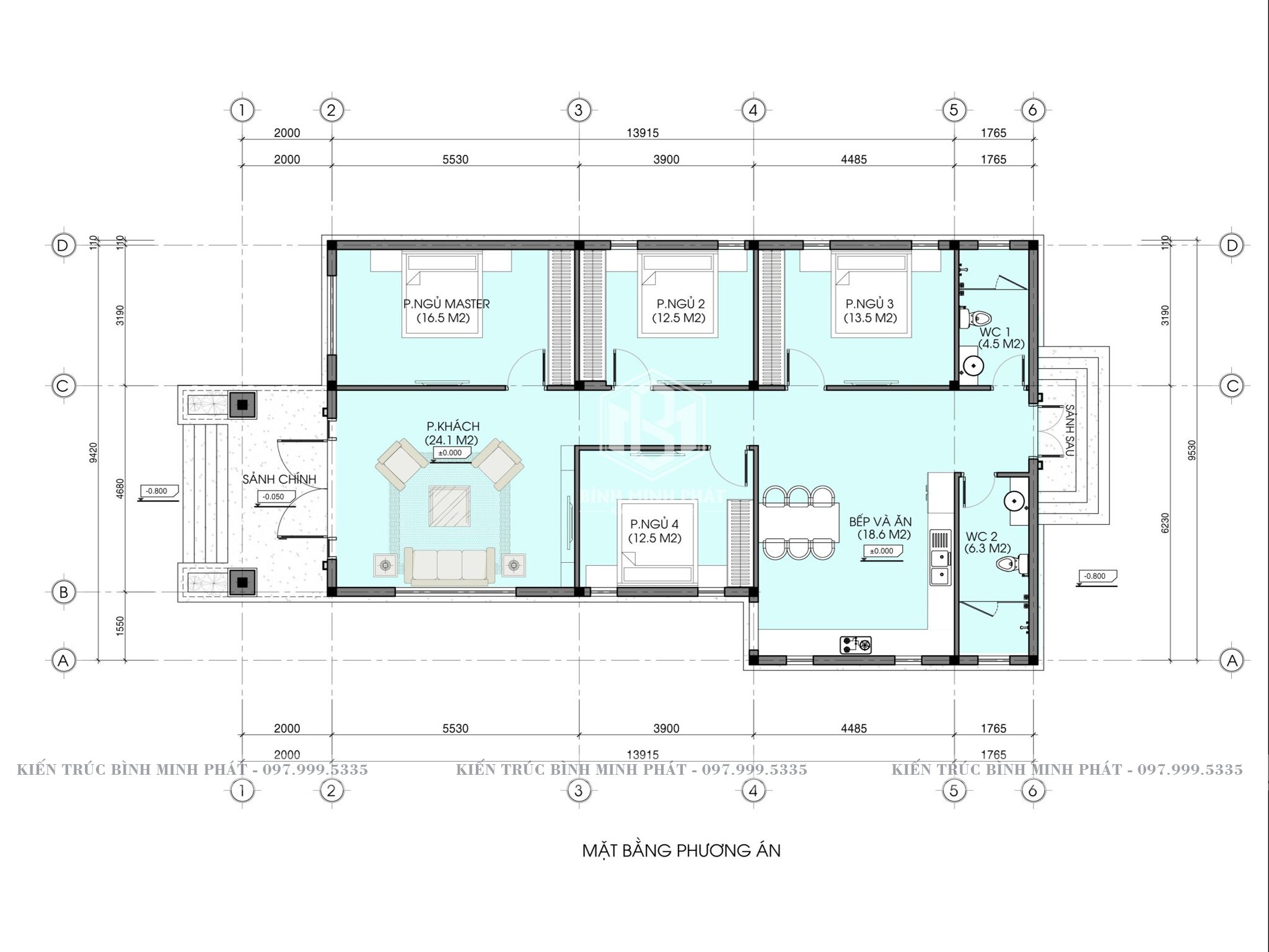
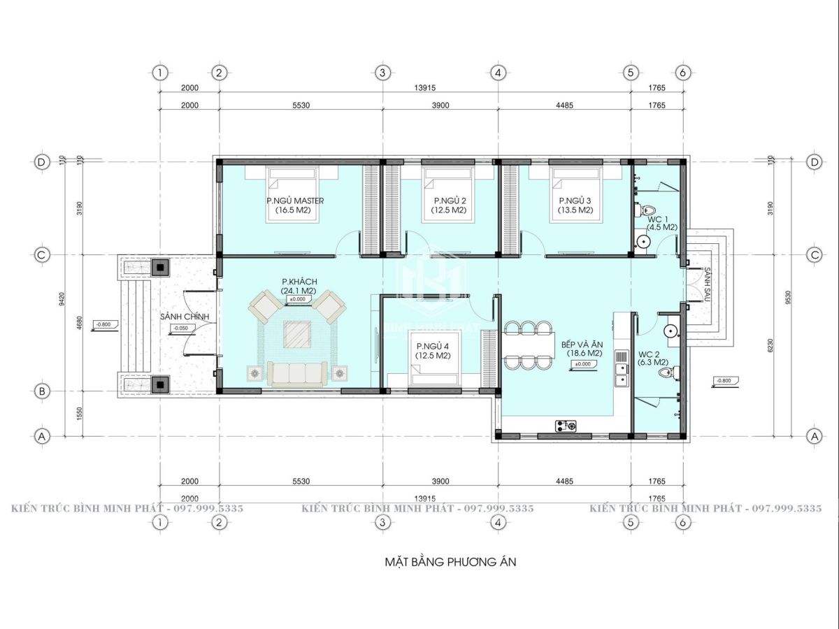
1 sảnh chính + 1 sảnh phụ + 1 phòng khách + 1 phòng thờ + 1 khu vực bếp & phòng ăn + 4 phòng ngủ + WC + 1 sân chơi |
|
Chi tiết về diện tích sử dụng: |
|
|
Diện Tích Tầng 1 |
144m2 + 32m2 sảnh +6m2 sân giặt phơi |
2.Phối Cảnh Ngoại Thất Biệt Thự 1 Tầng Mái Thái BT109
Toàn cảnh nhìn trên cao xuống của biệt thự 1 tầng BT109
Anh Huấn là chủ đầu tư tại Thanh Hóa có mong muốn xây dựng căn nhà kịp tiến độ cho kỷ niệm 40 năm kỷ niệm ngày cưới của bố mẹ anh. Ngay từ khi có ý định xây dựng công trình có nhiều ý nghĩa với gia đình, anh Huấn đã tham khảo nhiều đơn vị khác nhau nhưng phải tới với Bình Minh Phát anh mới thực sự hài lòng bởi đội ngũ nhân viên có chuyên môn cao và tư vấn nhiệt tình nên anh đã quyết định hợp tác cùng Bình Minh Phát.
Sau khi nhận được yêu cầu thiết kế biệt thự của gia đình anh Huấn, KT Bình Minh Phát đã về tận nơi khảo sát khu đất, tìm hiểu sở thích, phong cách, cá tính và nhu cầu sử dụng của các thành viên trong gia đình để có phương án thiết kế cho phù hợp. Tuy nhiên, gia đình anh có đông thành viên, mỗi người một ý kiến cho đến khi được các KTS Bình minh Phát tư vấn và thống nhất ý kiến và rất ưng ý với phương án thiết kế biệt thự 1 tầng phong cách hiện đại BT108.
Với thiết kế 1 tầng không quá phô trương và lộng lẫy, căn biệt thự 1 tầng mái nhật của gia đình anh Huấn khiến người xem ngưỡng mộ bởi bố cục đăng đối, cân xứng, các đường nét trang trí tinh tế, lịch lãm mang đặc trưng của kiến trúc hiện đại.
Phối cảnh 3D mặt tiền biệt thự 1 tầng BT109
Dừng bước trước sảnh chính sẽ bắt gặp bậc tam cấp 5 bậc dẫn lên đại sảnh lát đá granite màu đậm mang đến vẻ đẹp bóng bẩy, sang trọng. Lan can sảnh đón thấp với hệ con tiện truyền thống màu trắng sứ thiết kế uốn cong mềm mại, mở rộng ra 2 bên như cánh tay dang rộng chào đón các vị khách tới thăm nhà.
Cửa chính sử dụng nhôm xingfa màu nâu thẫm, kết hợp với nhiều ô kính vừa lấy sáng vừa mang vẻ hiện đại, sang trong cho không gian mặt tiền. Hàng cột hiên sử dụng hệ cột kép trơn, thân trụ nâng đỡ vách vòm cong mềm mại tạo dáng vẻ uyển chuyển, duyên dáng cho công trình. 
Cùng ngắm nhìn góc chụp nghiêng của căn biệt thự BT109
Một trong những điểm nhấn nổi bật của thiết kế biệt thự gia đình anh Huấn phải kể đến hành lang rộng, thoáng đãng ở mặt tiền phía trước của căn nhà. Đây là 1 điểm dừng chân thú vị để các thành viên trong gia đình có thể nghỉ chân, ngắm cảnh và tận hưởng không khí trong lành của thiên nhiên bên ngoài căn nhà.
Mặt bằng bố trí công năng của biệt thự vườn BT109

Cùng ngắm lại tổng thể căn biệt thự vườn 1 tầng BT109
Hệ mái Thái đồ sộ, buông trùm các khối nhà và sảnh chính theo kiểu xếp lớp tạo điểm nhấn ấn tượng cho công trình, Bên cạnh đó, cửa sổ áp mái độc đáo tạo hình vòm cong mềm mại vừa tạo vẻ đẹp ấn tượng, vừa có tác dụng đón ánh sáng vào không gian bên trong căn nhà. Không chỉ có giá trị thẩm mỹ, thiết kế mái Thái còn có khả năng thoát nước và chống nóng tuyệt vời, phù hợp với khí hậu miền Bắc nước ta.
Do phần lớn khu đất để thiết kế không gian sống cho gia đình, các KTS đã khéo léo bố trí những chậu cây, tiểu cảnh hai bên bậc tam cấp nhằm mang đến không gian xanh mát, trong lành cho căn nhà. Xung quanh căn nhà là khoảng sân rộng rãi, lát gạch chống trơn màu ghi sạch sẽ, giúp thuận tiện cho việc di chuyển, vệ sinh và các hoạt động vui chơi ngoài trời.
Mọi thông tin về kiến trúc & phong thủy của Mẫu biệt thự vườn 1 tầng mái Thái đẹp sang trọng tại Thanh Hóa vui lòng liên hệ HOTLINE Nhà Đẹp Bình Minh Phát : 0979995335 để được giải đáp và tư vấn cụ thể!
binhminhphat.facebook
Hotline: 0979995335